A classic long-range sailing yacht designed by the renowned De Vries Lentsch and built in 1977 by the respected Dutch yard Van Dam, Oude Wetering. This 17.46-metre ketch combines robust construction, timeless design, and excellent seakeeping qualities — making her ideal for extended passages as well as comfortable cruising.
The yacht features a heavy-duty steel hull, built to the high standards of traditional Dutch craftsmanship, and is designed to provide safe and stable sailing in all conditions. The ketch rig offers flexibility and ease of handling, even in stronger weather, while the elegant lines are characteristic of De Vries Lentsch’s classic yacht styling.
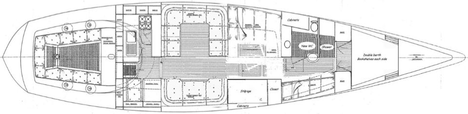
Teak decks and teak-finished superstructure add an exclusive appearance and a warm, traditional yacht atmosphere. Below deck, you are welcomed into a bright and airy saloon, illuminated by large, insulated superstructure windows. To starboard, just inside the entrance, is the navigation area, while the galley is located to port. The saloon features a spacious U-shaped sofa to port and a straight sofa to starboard, both of which can be used as occasional berths. The master cabin, located to port, offers a generous double berth, ample wardrobe space, and plenty of storage. The head has been completely refurbished and includes a tiled shower. In the passageway forward, there is an additional bunk berth before entering the forward cabin, which is fitted with a V-berth. Aft of the companionway, there is a dedicated workbench area providing excellent access to technical equipment, along with generous storage space.
This is a yacht for sailors who appreciate fine craftsmanship, true long-distance capability, and a well-balanced rig. She is a unique and well-built Dutch quality yacht with significant potential, whether the ambition is extended voyages or comfortable cruising.
OPTIMIST is in her third ownership and has undergone several refits and upgrades over the years, including a new engine, new sails, and updated navigation instruments. She is berthed in Grebbestad, on Sweden’s beautiful west coast. Viewings are available by appointment — welcome to book a visit.

Fredrik Sundberg
Berthon Scandinavia
Tel: +46 70822 02 09
E-Mail: fredrik.sundberg@berthonscandinavia.se