Najad 511, designad av Judel Vrolijk & Co, är en snabb men samtidigt komfortabel oceangående cruisingbåt. Med sin fina eleganta för, djupa kölprofil, bultad blyköl och skäddhängda roder kombinerar hon goda seglingsegenskaper med fina sjöegenskaper och trygghet till havs. Detta är en verklig “milätare” – byggd för att korsa oceaner med säkerhet, komfort och den klassisk Najad-kvalitet.
Najad 511 ZERO är inte bara ännu ett exemplar av denna respekterade modell. Hon var den andra Najad 511 som byggdes för sin första ägare och konstruerades specifikt för att uppfylla MCA Category Zero, den högsta standarden för världsomspännande, obegränsad charterverksamhet (även om hon inte har använts för charter).
ZERO är en beprövad oceangående cruiser som har underhållits mycket noggrant sedan ny, med regelbunden service, kontinuerliga uppgraderingar och genomtänkta förbättringar. Den nuvarande andra ägaren förvärvade båten 2022, har seglat henne i skandinaviska vatten och har fortsatt att investera i ytterligare uppgraderingar, vilket säkerställer att hon är fullt förberedd för långfärdssegling och nya äventyr.
Segelhanteringen har utformats för att vara enkel och effektiv, vilket gör båten idealisk för en liten besättning. Hon är utrustad med en elektrisk in-mast rullmast, två elektriska försegelrullar, fem elektriska vinschar och hydraulisk kick och backstagssträckare, allt manövrerat från sittbrunnen. Under segel är ZERO mjuk, balanserad och lätt att hantera.
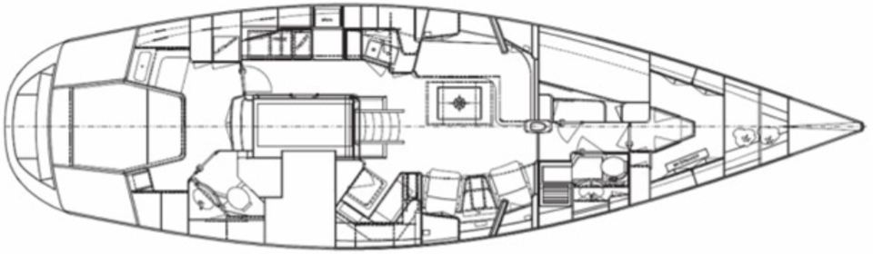
Under däck är mahognyinredningen både praktisk och inbjudande. Ägarhytten i aktern har en egen toalett med dusch. Layouten omfattar även ett längsgående pentry, en separat navigationsplats samt en komfortabel salong med en soffa och två fåtöljer – en idealisk plats att koppla av efter en lång dag till havs. För om huvudskottet, som är laminerat mot både skrov och däck för ökad strukturell styrka, finns två gästkabiner, en med V-koj och en med våningskojer, tillsammans med en gästtoalett och dusch. För närvarande används den övre kojen i våningskojen för förvaring av reservdelar, men den kan enkelt återställas till koj om så önskas.
För seglare som söker en båt i mycket fint skick för sin ålder, som inte kräver ytterligare stora investeringar och är helt redo för seglingssäsongen 2026, är ZERO väl värd en visning.

Magnus Kullberg
Berthon Scandinavia
Tel: +46 79 079 55 45
E-Mail: magnus.kullberg@berthonscandinavia.se