Hallberg-Rassy 36 Mk II är en respekterad och beprövad långfärdsbåt, designad av Germán Frers och byggd av Hallberg-Rassy i Henån på den svenska västkusten. Mk II-modellen introducerades 1995 och har en förlängd akter som ger en rymlig badplattform och extra utrymme i akterkabinen, inklusive en större dubbelkoj och förbättrad förvaring. Den bredare aktern och den förfinade skrovformen förbättrar både komfort och seglingsegenskaper jämfört med Mk I. Med ett djupgående på endast 1,70 meter är båten mångsidig nog för både ocean- och skärgårdssegling.
HR 36 Mk II är ett säkert och stabilt val för seglare som värdesätter säkerhet, seglingsglädje och kvalitet. Mastheadriggen ger ett välbalanserat segelplan, vilket bidrar till en stabil och pålitlig seglingsupplevelse. Skrovets välavvägda V-form skapar en mjuk gång i sjön, något som ofta återfinns på större båtar. Denna modell har visat sin styrka över världshaven, med en klassvinst i den prestigefyllda Atlantic Rally for Cruisers (ARC) och flera framgångar i lokala kappseglingar.
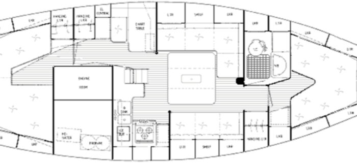
MAVERCIK, en Hallberg-Rassy 36 Mk II från 1998, har bevarats väl genom åren och har en interiör i gott skick med minimala tecken på användning. Hon är fullt utrustad för långfärdssegling i nordliga breddgrader och har löpande uppgraderats för att säkerställa driftsäkerhet och komfort. Hon är utrustad med en Volvo Penta 57 hk motor, rullmast och en nyligen bytt stående rigg tillsammans med ett nyare storsegel. Segling och manövrering underlättas med två elektriska vinschar, ankarspel och en ny bogpropeller.
MAVERCIK har även en mysig och effektiv dieselkamin monterad på salongsskottet med en separat dieseltank. Det finns även en extra dieselvärmare samt ett navigationspaket med radar, AIS och en ny plotter. Energiförsörjningen säkras genom en ny vindgenerator och solpaneler. Targa-bågen integrerar dävertar för jollen, och maststeg gör det enkelt att ta sig upp i riggen. En stor mängd säkerhetsutrustning gör henne till en trygg och förberedd långfärdsbåt.
MAVERCIK säljs med full dokumentation, inklusive momspapper och en omfattande historik. Detta är en unik möjlighet att förvärva en Hallberg-Rassy 36 Mk II som är redo att kasta loss, perfekt utrustad för långfärdssegling i norra hemisfären.
”Det var underbart att vara bara vi två på havet, med elementen, Dick & Maverick.”
(Ur ett sms skickat 2023)
Att Maverick var en trygg, stabil och älskad båt, råder det inga tvivel om. Kapten Dick tillbringade all sin fritid till sjöss tillsammans med henne – året runt, i alla väder. Han pratade om Maverick som en vän, en följeslagare som han delade havets alla utmaningar och skönhet med. En vän man tar hand om, och som i gengäld alltid ser till att man kommer tryggt i hamn.
Tillsammans seglade de över vidsträckta vatten, från stockholms skärgård till Bergen i Norge och vidare till Skottland – ett tydligt bevis på att Maverick var allt man kunde önska sig av en båt.
Frida, dotter & även vän till Maverick

Kim Silfving
Berthon Scandinavia
Tel: +46 739 960 849
E-Mail: kim.silfving@berthonscandinavia.se