Najad 380 är en av de mest framgångsrika modellerna från det Orustbaserade varvet. Båten är en vidareutveckling av dess föregångare Najad 373 och är designad av Judel/Vrolijk & Co.
Najad 380 erbjuder en välskyddad relativt djup mittsittbrunn, fast vindruta, teakdäck och en integrerad badbrygga i aktern. Skrov och däck är byggt i sandwichlaminat (divinycell) vilket i kombination med längsgående stringers och laminerade skott, ger en relativt lätt och stark konstruktion. Båten har ett djupt kölsvin, utanpåliggande blyköl och roder med skedda.
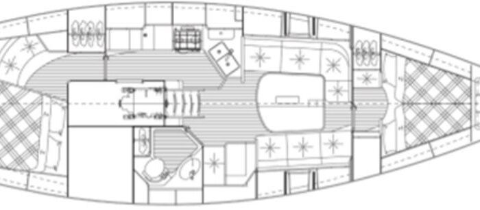
Direkt i anslutning till nedgångstrappan finns navigationsplats, toalett med dusch och längsgående kök. Det finns en rymlig akterhytt och en gästhytt i fören, båda med dubbelkojer. Salongen har ett bord med fällbara sidor och två soffor. Inredningen är tillverkad av mattlackerad mahogny.
Ett tecken på att Najad 380 fungerar bra på de stora haven är den engelska kvinnan Jane Socrates 339 dagars solo-segling non-stopp jorden runt med sin Najad 380 NEREIDA.
Najad 380 SIGNE är en fin och välskött båt. Nuvarande (andra) ägare köpte båten via Berthon Scandinavia 2018. Med undantag för 2020 och 2021 då båten stod kvar på land på grund av pandemin har den använts för familjesegling under sommartid huvudsakligen på svenska ost- och västkusten. Båten har alltid förvarats inomhus under vintern.
SIGNE är ett fint exemplar av denna populära modell– välkomna att boka visning! Båten ligger vid vår visningsbrygga i Henån.
Det här är vår sjätte segelbåt, efter en Golden Hind, Contessa 26, Seamaster 925, Beneteau 345 och Starlight 35. Utan tvekan är detta den bästa vi har ägt. Hon seglar fantastiskt och är imponerande snabb. Vi förvånas ofta över hur vi i lätt vind seglar om betydligt lättare 40-fotsbåtar. Båten hanterar alla väderförhållanden utmärkt och är lätt att manövrera, både till sjöss och i hamn.
Min fru och jag har seglat henne längs den svenska väst- och ostkusten, samt i Östersjön till Tyskland och Danmark – oftast bara vi två, men ibland även tillsammans med ett annat par. Najad 380 är en perfekt långfärdsbåt med en genomtänkt layout och säker sittbrunn.
Av olika skäl har vi dock beslutat att lämna Östersjön och byta till en mindre båt i Storbritannien. Vi är därför glada att kunna lämna över SIGNE fullt utrustad, redo för cruising – ända ner till sängkläder om så önskas.

Magnus Kullberg
Berthon Scandinavia
Tel: +46 79 079 55 45
E-Mail: magnus.kullberg@berthonscandinavia.se